Sale 405,000 EUR - Semi Detached Villa
A new construction project in three phases, starting with Phase 11 on the south side. This phase consists of six very spacious and modern villas.
The project is located in the charming Dolores neighborhood.
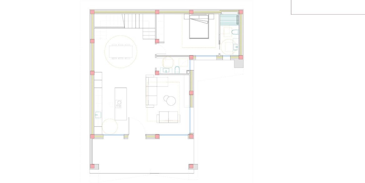
On the ground floor, we find a spacious living room, a beautiful kitchen with a cooking island, a lovely, spacious TV corner, and a guest toilet. The house features three double bedrooms as standard: one on the ground floor with an en-suite bathroom and two on the first floor, which also includes a family bathroom and a laundry room.
The total built area is approximately 165 square meters, with a plot size of approximately 260 square meters, offering ample space for comfortable living.
The villa also has a basement (technical cellar) which is delivered unfinished but can be finished for an additional fee.
The house features a beautiful open-plan kitchen with integrated appliances and a breakfast bar, a cozy and spacious living room, bedrooms with built-in wardrobes, and much more. The beautifully spacious layout provides abundant natural light and a pleasant view of the beautiful terrace and the city park. In addition to the ground-floor terrace, the villa also boasts a spacious first-floor terrace and the luxury of a private pool, perfect for relaxing or entertaining, as well as on-site parking.
All aluminum windows are fitted with electric shutters, and the house features a reinforced security door. Air conditioning is installed on both the ground and first floors, making it ready for immediate occupancy.






















