Sale 435,000 EUR - Semi-detached
Exclusive Property in Ciudad Quesada – Luxury, Comfort, and Style
We are delighted to present this stunning semi-detached villa, located in the prestigious Euromarina complex in the heart of Ciudad Quesada. Built in 2019, this property combines modern design with high-quality finishes, offering an exceptional lifestyle on the sunny Costa Blanca.
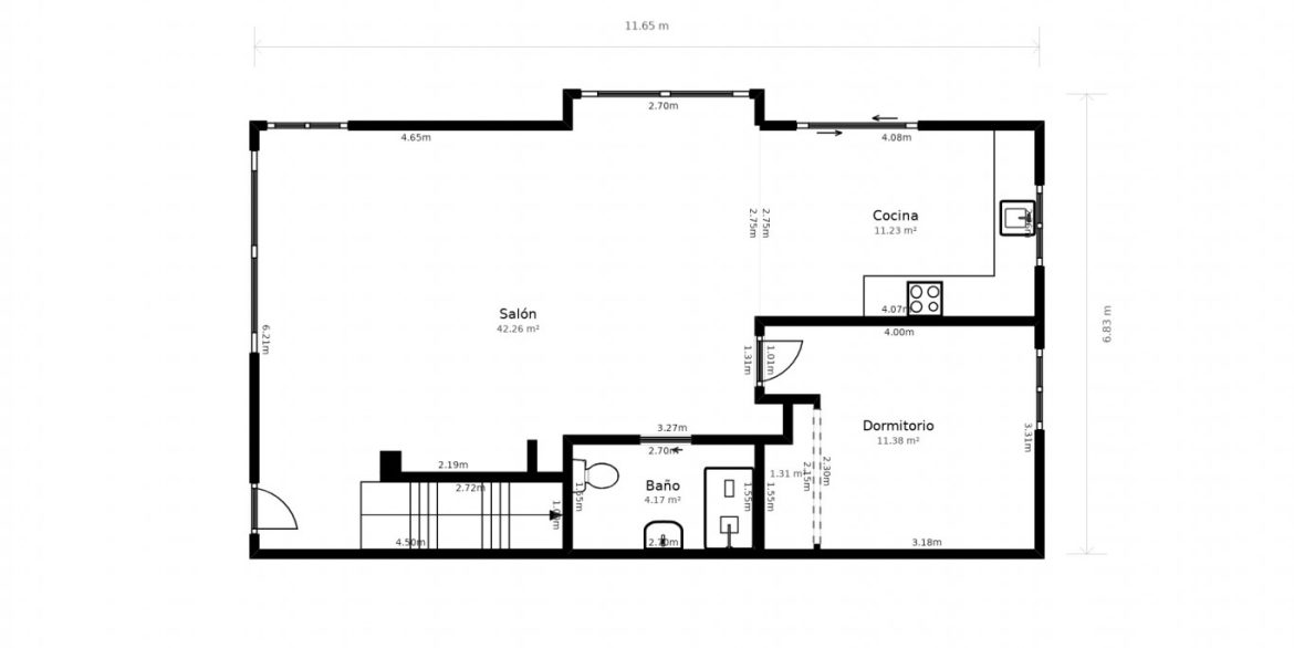
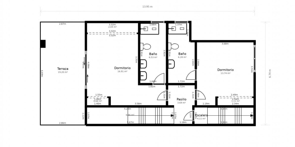
Property Details:With a generous built area of 134 m², this home features a thoughtfully designed layout, perfect for both permanent living and holidays. Key features include:
3 spacious bedrooms with abundant natural light and ample storage space.
3 modern bathrooms, including an en-suite with luxury finishes.
A bright and inviting living room, ideal for relaxation and family time.
A sleek open-plan kitchen, fully equipped and designed for convenience and elegance.
A spectacular large rooftop terrace, perfect for soaking up the Mediterranean sun, dining al fresco, and enjoying beautiful views.
Central air conditioning in every room, ensuring year-round comfort.
Outdoor Spaces and Amenities:The complex offers beautifully maintained communal areas that elevate your living experience:
A lushly landscaped garden and green zones, perfect for relaxation.
Access to a large communal pool, complete with outdoor showers.
A private parking space on the property.
Ample storage, both indoors and outdoors, for all your needs.
Location and Surroundings:Ciudad Quesada is one of the most sought-after areas on the Costa Blanca, renowned for its vibrant atmosphere, excellent amenities, and proximity to stunning beaches and golf courses. Shops, restaurants, and medical facilities are within walking distance, while Alicante Airport is just a 40-minute drive away.
This home offers a unique combination of luxury, comfort, and an unbeatable location.
Don’t miss this opportunity—contact us today for more information or to schedule a viewing. Your dream home on the Costa Blanca awaits!









































