Sale 174,000 EUR - Apartment
Renovated 2 bedroom apartment, on the second floor, with terrace and communal swimming pool in Villamartin, Orihuela Costa, Alicante.
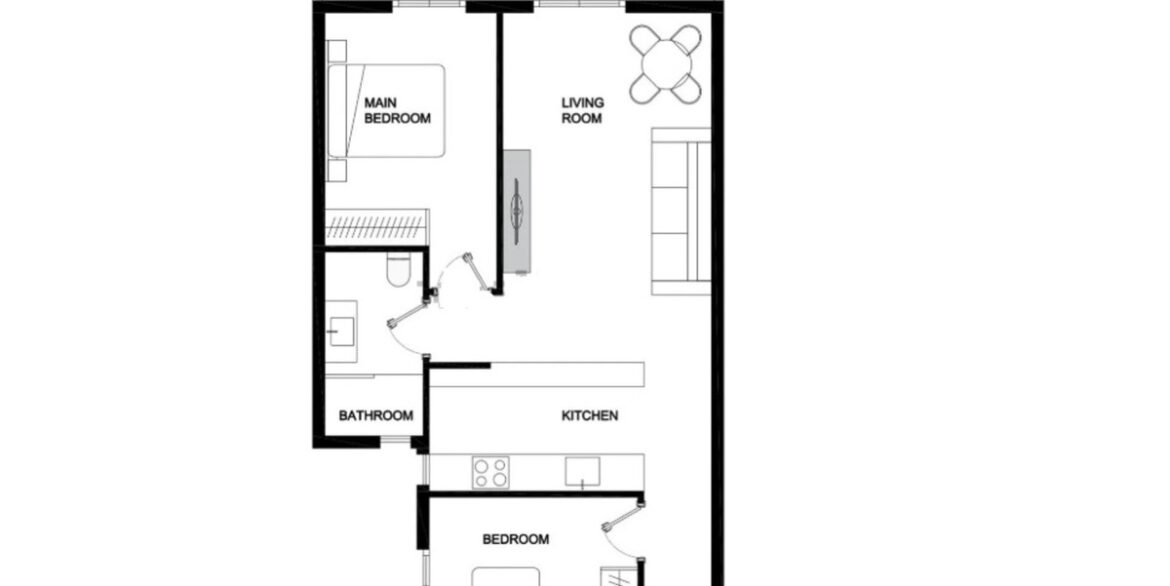
The house has been recently renovated and furnished, ready to move into, and it has a bright living/ding room with access to a sunny terrace, a separate kitchen with new kitchen appliances, two bedrooms with built-in wardrobes, one complete renovated bathroom, air conditioning (hot/cold). New furniture and careful decoration. Underground parking space in the garage is also included!
The residential has a lift, a beautiful communal garden with swimming pool area. Ideal for those looking to live in a quiet residential area and relaxed atmosphere.
Live next to the Mediterranean Sea and the Villamartin Golf course, in this completely renovated apartment, located in the Costa Paraíso Residential (Villamartín, Orihuela Costa).
An international, quiet and very well connected environment with the beaches, the La Zenia Boulevard shopping center and the Villamartín golf course.































