Sale 263,000 EUR - Apartment for sale
NEW BUILD RESIDENTIAL IN BENIJOFAR
New Build residential with communal rooftop pool located in the centre of the charming village of Benijofar.
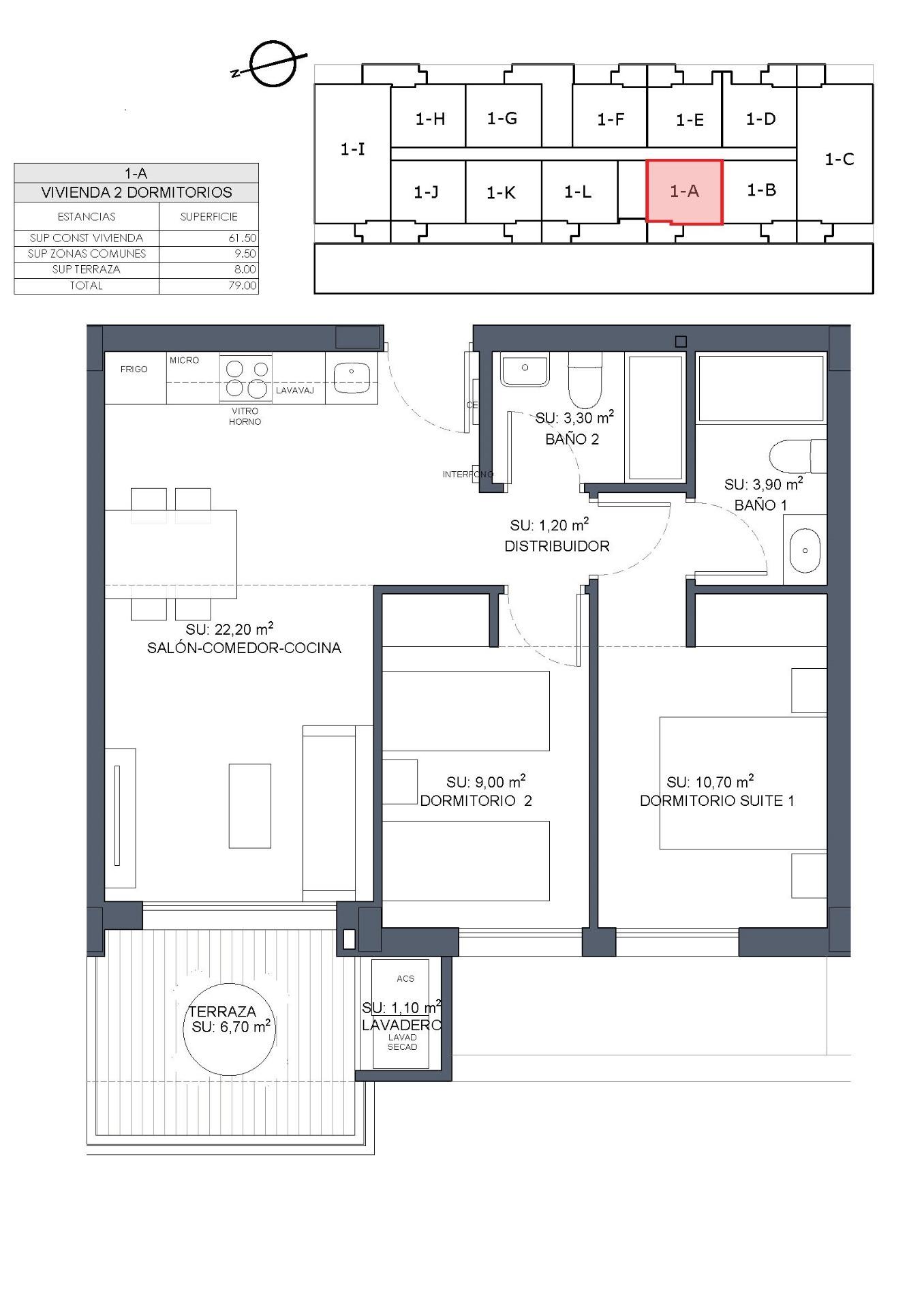
You can choose modern apartments with terraces or penthouses with solarium.
New Build modern properties with an open plan kitchen and living room, 2 and 3 bedrooms, 2 bathrooms, terraces.
An options underground parking space at an extra cost.
Benijofar it is a lovely village with a charming church and an attractive square/plaza located inland on the Southern Costa Blanca, close to the tourist resorts of Guardamar del Segura and Torrevieja.
Benijofar is also a popular place to stay for the summer holidays as it is close enough to the coastal resorts yet quiet enough to be able to get away from it all.
There are several golf courses close by as well as water parks in nearby Rojales and Torrevieja.
The nearest and best beaches to Benijofar are about fifteen minutes away by car and are some of the best beaches on the Southern Costa Blanca, at Guardamar del Segura and Torrevieja. There are also regular bus services from Benijofar to Guardamar del Segura and Torrevieja with easy access to the beaches.
20 minutes drive to Alicante airport with regular flights all over Europe.













