Sale 310,000 EUR - Town House
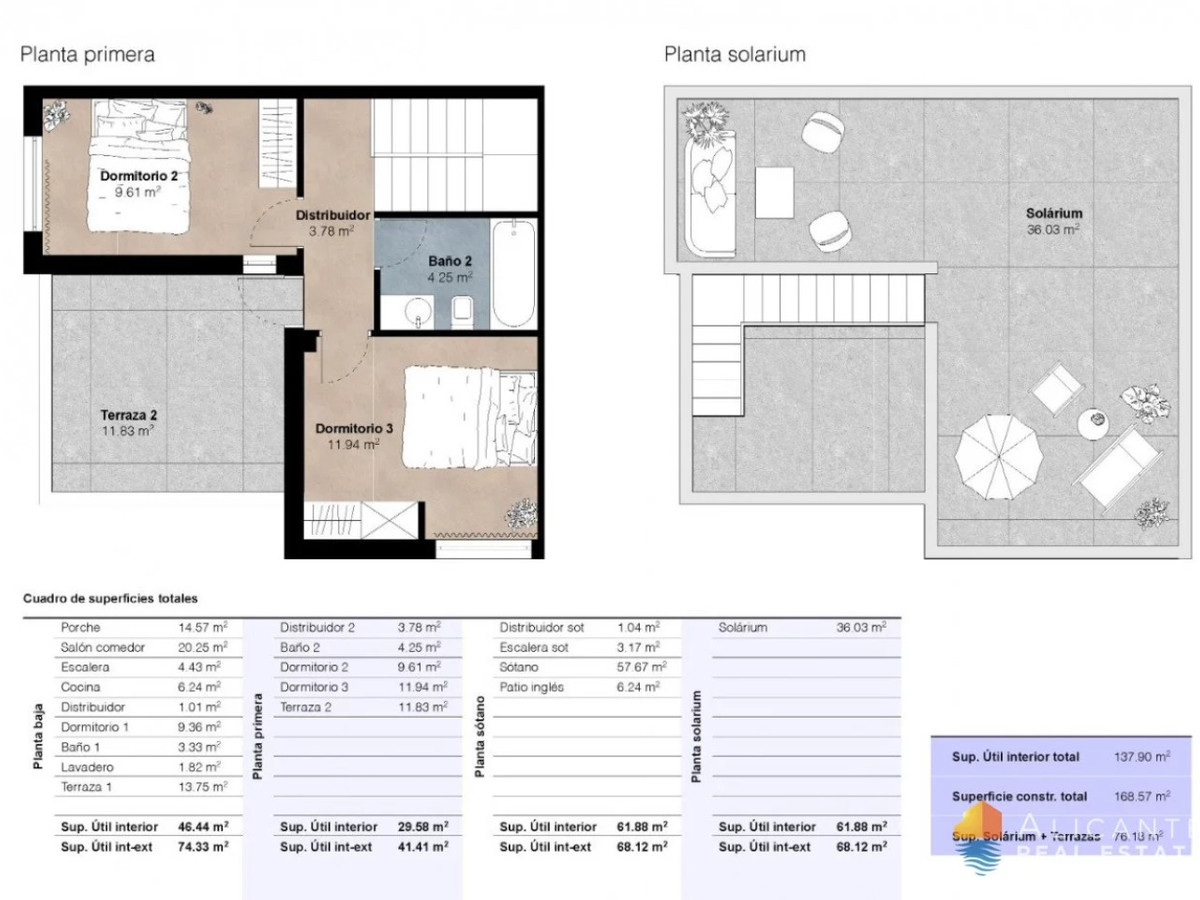
We present this new and unused home, located in one of the most privileged and high-value areas of the Costa Blanca South. The house is just 1 km from the prestigious La Finca golf course, offering an ideal location for golf lovers and tranquility seekers, but with excellent connections, close to the highway and a short drive from beaches, airports, and nearby cities. It is situated only 6 km from the center of Algorfa.The townhouse has 3 bedrooms and 2 bathrooms, a spacious living room and kitchen, designed to enjoy bright and functional spaces. Outside, it features a cozy porch, terraces on the first and second floors, and a solarium, all with views of the spectacular mountain landscape.One of its greatest attractions is the 57 m² basement garage, with endless possibilities: workshop, leisure area, wine cellar, or storage. Additionally, a private pool can be built in the garden, adapting to your lifestyle.The home is located directly behind a shopping center with restaurants, combining convenience and access to services with the tranquility of the residential area. The location is unbeatable: only 15 minutes from the beaches of Guardamar del Segura, 35 minutes from Alicante airport, and close to urban centers such as Almoradí, Benijófar, Ciudad Quesada, Torrevieja, and Orihuela Costa, where you will find large shopping centers and services.This is a unique opportunity to acquire a modern home in an exclusive and perfectly connected area, a perfect option for golf lovers.Do not hesitate to contact us for a visit!
















































