Sale 470,000 EUR - Apartment
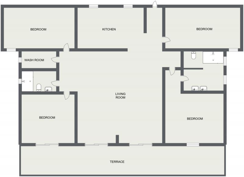
Apartment with large terrace. Communal pools, sauna and gym. A warm welcome to this well-planned and spacious apartment with a large terrace located in the attractive Altos del Mediterraneo in Los Dolses on the southern Costa Blanca. The apartment has a consistently pleasant flow of light and lightly furnished surfaces, it is about 152 square meters and consists of four bedrooms, two bathrooms, living room and kitchen. On the large terrace there is space for outdoor furniture and a lounge group.
The living room has an inviting feel with space for a sitting area and dining area.
The kitchen, which is open plan to the living room, has good storage possibilities in upper and lower cupboards as well as good work surfaces.
Four bedrooms with pleasant light and quiet locations, space for beds and bedside tables. The master bedroom also has a bathroom en suite, that bathroom is equipped with a toilet, sink with commode and shower.
The bathroom is modern and equipped with a toilet, sink and shower, there are also windows for light and ventilation.
There is a parking space for the apartment.
Here you live in a popular urbanization with a large range of facilities, in the common area there is an indoor pool, an outdoor pool, a gym and a sauna.
Proximity to grocery store, restaurants and cafes and a short walk or bike ride from the large shopping center La Zenia Boulevard. The Mediterranean Sea and nice beaches such as Playa de la Zenia, Cala Capitán and Playa Pequeña Cabo Roig are a few kilometers away. For those interested in golf, there are a large number of well-maintained golf courses a short drive away, including Villamartin Golf, Las Ramblas Golf and Real club de Golf Campoamor.
Welcome to contact us for more information or to book a viewing. We of course carry out digital screenings if you are unable to be there.





































